г Саратов, ул им Пугачева Е.И., д 98/100 89297770613
г Москва, ул Горчакова, д 11, эт 2 89297770613
г Энгельс, ул Льва Кассиля д 14, 2 эт 89631126046

Продажа 3-к.квартира, 58.6 м², 8/9 эт. ID: J6854

Энгельс, улица Краснодарская, д.13

Комнаты 3
Площадь 58.6 м²
Кухня 8.6 м²
Этаж 8 из 9
Сдача 1991 г.
Материал кирпичный
4 990 000
85 153 /м²
Рассчитать ипотеку
Резванова Оксана

Резванова Оксана
Специалист по недвижимости

+7(909)333-1199

779619@mail.ru
QR
Ссылка на объект

Описание

К продаже просторная 3-х комнатная квартира по адресу: г. Энгельс, ул. Краснодарская, д. 13

ИНФРАСТРУКТУРА:
Всё необходимое для комфортной жизни в шаговой доступности: сетевые магазины, аптеки, школа №16, 32, Гимназия №8, Лицей-детский сад, детский сад № 11, Покровский рынок, Детская поликлиника, остановка общественного транспорта

О КВАРТИРЕ:
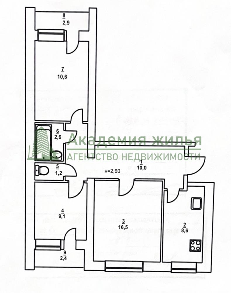
Квартира расположена на 8 этаже 9-ти этажного кирпичного дома
Окна квартиры выходят на противоположные стороны дома (во двор и на улицу Краснодарская)
Косметический ремонт, площадь 58,6 кв.м + две просторные лоджии
Комнаты изолированные 10.6, 9,1 и 16,5 кв.м, кухня 8,6 кв.м, коридор 10 кв.м, санузел раздельный
Пластиковые окна, металлическая входная дверь, чистый тамбур на две квартиры

О СДЕЛКЕ:
Свободная продажа
Один взрослый собственник, быстрый выход на сделку
Юридическое сопровождение сделки!

Бесплатная консультация по сделкам с недвижимостью
Принимаю на продажу объекты недвижимости
Звоните!

Характеристики

  • Тип недвижимости Квартиры
  • Населенный пункт Энгельс
  • Адрес улица Краснодарская, д.13
  • Количество комнат 3
  • Год постройки дома 1991 г.
  • Общая площадь 58.6 м²
  • Площадь кухни 8.6 м²
  • Этаж 8
  • Этажей в доме 9
  • Тип санузла Раздельный
  • Тип балкона 2 лоджии
  • Ремонт косметический
  • Состояние объекта хорошее
  • Наличие телефона нет
  • Наличие интернета да
  • Наличие мебели да
  • Мусоропровод нет
  • Вид из окон во двор и на улицу
  • Тип дома кирпичный
  • Тип комнат Изолированные

Задать вопрос



Вас также может заинтересовать:

2-к.квартира, 49 м², 6/9 эт.
Энгельс, улица Петровская, д.98

5 700 000
  • Общая площадь:49 м²
  • Площадь кухни:9 м²
  • Этаж:6
  • Тип санузла:Раздельный
21
3-к.квартира, 88 м², 1/4 эт.
Энгельс, микрорайон Энгельс-1, д.16

4 650 000
  • Общая площадь:88 м²
  • Площадь кухни:14 м²
  • Этаж:1
  • Тип санузла:Совмещенный
15
2-к.квартира, 50.2 м², 1/9 эт.
Энгельс, улица Тельмана, д.43

4 100 000
  • Общая площадь:50.2 м²
  • Площадь кухни:9 м²
  • Этаж:1
  • Тип санузла:Раздельный

Мы используем файлы cookie, чтобы обеспечить вам наилучший доступ к нашему веб-сайту

Скопировано